Intimità su misura, tra funzionalità e calore
In appena 50 metri quadrati si racchiude il progetto di un nuovo inizio. Questo piccolo appartamento, situato in un contesto residenziale dei primi anni 2000, è stato completamente riconfigurato per accogliere non solo le esigenze di un giovane single, ma anche l’arrivo della sua compagna dall’estero: un luogo che diventa simbolo di unione e accoglienza.
Un layout reinventato con precisione sartoriale
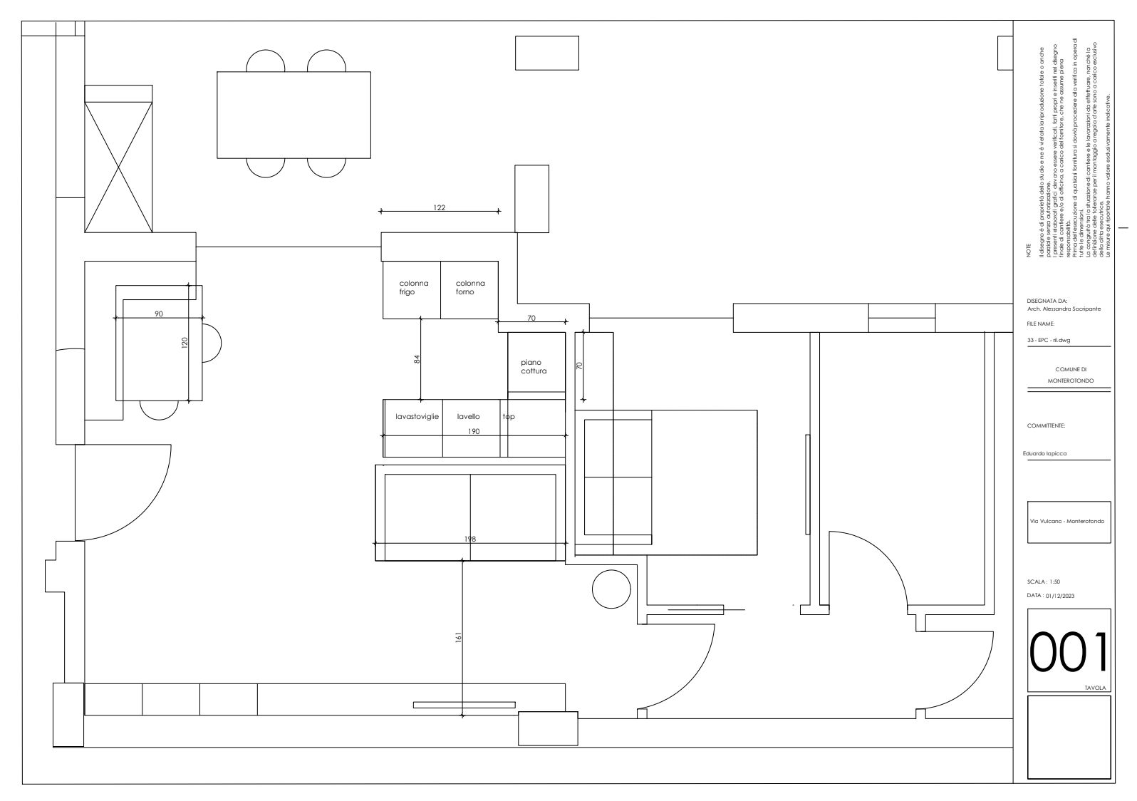
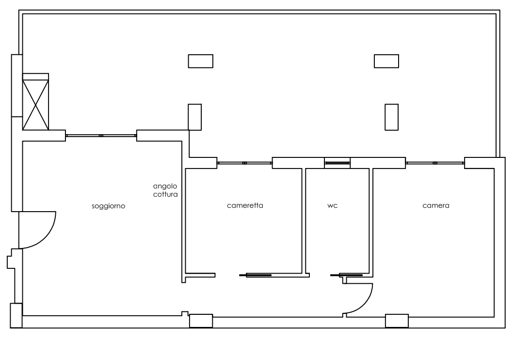
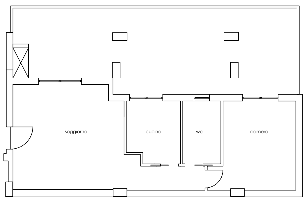
L’intervento ha richiesto scelte mirate e risolute: la cucina è stata annessa alla zona giorno, liberando così lo spazio necessario per ricavare una seconda, piccola camera da letto. Un gesto che ha trasformato la distribuzione interna, rendendola più dinamica e flessibile.
Il bagno è stato completamente ripensato: non solo nelle finiture e nei materiali, ma soprattutto nelle funzioni. Più contenitivo, più pratico, più attento alle esigenze quotidiane di una donna, con una nuova sensibilità progettuale dedicata al comfort e alla praticità.
Spazi minimi, resa massima
La cucina è un piccolo capolavoro su misura: ogni modulo, ogni anta, ogni cassetto è studiato al millimetro. Compatta ma estremamente funzionale, si affaccia su una zona giorno raccolta e luminosa, sviluppata ad angolo su morbide panchette integrate. Un piccolo living che stupisce per intelligenza compositiva e qualità percettiva.
A dividere — e al tempo stesso unire — gli ambienti, un’isola centrale che dialoga in modo fluido con il divano. Le due funzioni si guardano di spalle, ma sono parte di un unico gesto progettuale che tiene insieme tutto: cucina, relax, accoglienza.
Toni caldi, rassicuranti, domestici
Il linguaggio estetico è volutamente essenziale e raffinato. Toni chiari, caldi, minimalisti: scelte che amplificano la luce, alleggeriscono gli spazi e infondono una profonda sensazione di casa. In camera da letto, una carta da parati selezionata con cura e un armadio su misura chiudono il racconto con un tocco di delicatezza e personalità.
Un progetto in spazi ridotti, ma ricco di sensibilità, dove ogni centimetro è pensato per accogliere una nuova storia


